
Exceptional Architectural Assistance for Your Needs
Delivering outstanding support to architects and firms in need of prompt professional assistance.
Tailored Solutions
Custom assistance for architects and firms alike.
Experienced architects ready to support your projects.
Comprehensive services for all architectural needs.
Professional Team
Immediate Support
About Us
Arch Assist Pro provides highly skilled professionals specializing in architectural design and drafting, from conceptual development to detailed construction drawings. Our experienced team, based in the Philippines, is dedicated to delivering client-focused support. We aim to help address staffing gaps in the growing construction industries of the UAE and US by offering a cost-effective alternative to traditional office setups without compromising the quality of drawings.
The Architectural Agency model primarily catering to sole proprietors and architectural firms based in the UAE and the US. Arch Assist Pro is an architect-led agency, which allows us to deeply understand the challenges commonly faced within the architectural industry. We recognize the demands of managing workloads, overseeing staff, and maintaining quality assurance and more. By partnering with us, you can alleviate these burdens. Our team of experienced professionals is here to support and strengthen your operations, enabling you to focus on growth and client engagement. Let us be your trusted partner in expanding your practice.
Our goal is to connect licensed professionals and clients worldwide through a seamless architecture-agency model — built by a passionate group of architects and Digital Marketing Manager, focused on building one of the leading agencies across the globe.


→ Direct Employment
→ Architect-Led Agency
→ Cost-Effective
→ Global Collaboration Experts
Your problem, our solution!
Being a one-man team means handling everything alone. It often leads to burnout, limited project capacity, and little time for growth. Without support, even small setbacks can impact the entire workflow.


→ Time Management
→ Marketing
→ Client Meetings
→ Deadlines
THE PROBLEM
→ Quality Assurance
→ Admin Tasks
THE SOLUTION



Why choose us?
Dedicated Architectural agency ensures better quality outcomes.
Addresses your problems with immediate solutions.
Comprised of licensed professionals focused on driving growth for your team and business.
Formed by professionals with vast experience, requiring no further training.
Architectural Assistance Services
Expert support for architects and firms needing immediate, professional architectural assistance.
3D Rendering and Animation
Bring your designs to life with our high-quality 3D modeling and rendering services. We transform architectural concepts into detailed, photorealistic visuals that help clients visualize spaces before construction begins. From exterior perspectives to interior walkthroughs, our 3D solutions enhance presentations, support design decisions, and streamline client approvals.


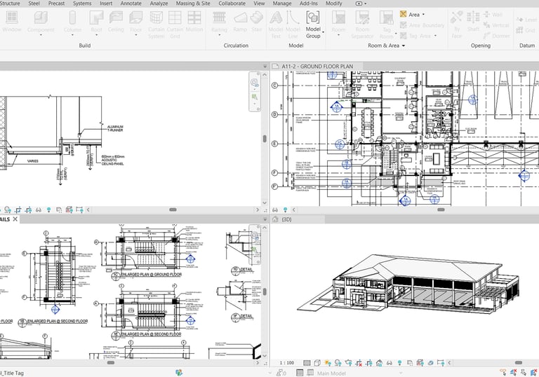
Construction Drawings
This service is designed to support architects, engineers, and firms in producing detailed drawings required for permits and construction. From preliminary layouts to fully developed plans, our licensed professionals help lighten your workload, allowing you to focus on your core responsibilities and priorities.
We specialize in a wide range of industry-standard software, including Revit, AutoCAD, SketchUp, Lumion, V-Ray, Enscape, Photoshop, and more. Our professionals are highly proficient and can seamlessly adapt to the tools you use, ensuring smooth collaboration and efficient project delivery.
Technical Expertise




Our Expertise
With a diverse blend of professional backgrounds, technical skills, and real-world experience, our team brings a deep well of expertise to every project we undertake. From strategic planning and problem-solving, we are driven by a commitment to quality, efficiency, and continuous learning.
Residential
Mid-rise to High-rise Building
Healthcare
Interior fit-out
Event Space Planning
Commercial Spaces
"Great architecture starts with vision. Great agency start with people who share it."
Get in Touch with Us
Reach out for architectural assistance and professional support.
